Project Description

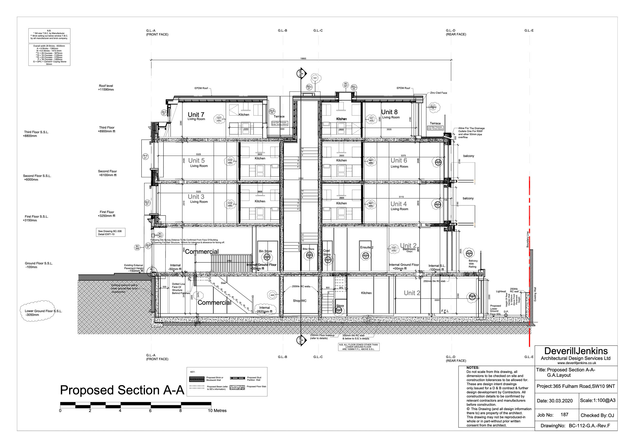
The property was a low value commercial unit on the ground floor with part basements, above there were two flats, a two bed and a one bed plus a separate unused room.

All were poorly laid out and did not conform to modern standards. Following a site and area assessment a new three storey height building and basement, delivering a commercial double height unit with eight residential units behind and above was proposed and has been approved.

Proposal

The proposal was initially resisted by the LPA, but achieved following amendments and supplying further information.

Several planning applications were needed to achieve the current design which is programmed to complete on site in June 2022.

Execution

DJADS have taken the design from feasibility through planning applications into the detail design and coordinating with other consultants the construction details to the tendering process and thence to site attendance

Share This Project